Powierzchnia biurowa Lublin Śródmieście, Centrum, Dolna 3-Maja
Lublin Pokaż na mapie ›
Dodane: Środa, 26 Listopad, 2025 05:15
1 364 zł
Szczegóły ogłoszenia
- Kategoria: Biura i lokale / Do wynajęcia
- Powierzchnia:23 m2
- Sprzedaż:Pośrednik
- Cena: 1 364 zł
Opis oferty
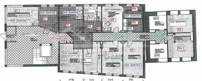
Oferta najmu powierzchni biurowej w wysokim standardzie w atrakcyjnej lokalizacji w Lublinie przy ul. Dolnej 3 Maja.Szczegóły oferty:
• Powierzchnia rozliczeniowa brutto: 23.53 m2
• Lokalizacja: centrum miasta
• Standard wykończenia: wysoki, klimatyzacja, duże okna zapewniające dostęp do światła dziennego, recepcja, winda
• Rozkład: jedno duże pomieszczenie typu open space oraz kilka niezależnych gabinetów
• Media: dostęp do Internetu, ogrzewanie, prąd, woda
• Dostępność: od zaraz
• Miejsca parkingowe: w strefie płatnego parkowania, parkingi strzeżone w okolicy
Dodatkowe informacje:
• Lokal idealny pod działalność bankową, biurową, usługi księgowe, prawne, IT
• Możliwość adaptacji pomieszczeń zgodnie z potrzebami najemcy.
• W pobliżu restauracje, banki, urzędy, sądy, sklepy, inne udogodnienia.
Cena:
• Miesięczny czynsz: 1 365,00 zł netto + media 518,00 zł netto
• Kaucja: jednomiesięczny czynsz
Możliwość najmu całej powierzchni jak również poszczególnych pomieszczeń
Zainteresowanych zapraszam do kontaktu:
Oferta dostępna za pośrednictwem AD REM NIERUCHOMOŚCI CEZARY PAPLIŃSKI.
Zapraszamy na naszą stronę www.ad-rem.lublin.pl
W razie pytań proszę o kontakt: Tomasz Łozowski - tel . 609 - pokaż numer telefonu - , @
Pomogę przy sprzedaży lub wynajmie,
jest ktoś, kto się tym chętnie zajmie! Zapraszam na prezentację!
Powyższa oferta ma charakter informacyjny, może podlegać aktualizacji i nie stanowi oferty handlowej w rozumieniu art. 66 §1 kodeksu cywilnego oraz innych właściwych przepisów prawnych.
Numer oferty: 660 - pokaż numer telefonu -
Sprawdź zainteresowanie tym ogłoszeniem
Wyświetlenia
Data dodania
Ostatnio widziany
Obserwujących
Wysłane zapytania
Odsłony telefonu
Powiadom o podobnych ogłoszeniach
Lokalizacja: Lublin
Kategoria: Nieruchomości » Biura i lokale » Do wynajęcia
Cena: od 1000 zł do 1500 zł Powierzchnia : od 20 m2 do 26 m2
Chcę otrzymywać powiadomienia o nowych ofertach
Tomasz Łozowski
Konto firmowe
Na Lento.pl od 09 sty 2024
Odpowiada szybko
Strona użytkownika
- Wypromuj ogłoszenie
- Zgłoś naruszenie
- Drukuj ulotkę
- Edytuj/usuń ogłoszenie
- Udostępnij ogłoszenie
- Dodaj na Facebook









