Mieszkanie Lublin Tatary
Lublin / Tatary Pokaż na mapie ›
Dodane: Czwartek, 27 Listopad, 2025 22:16
375 000 zł
7979 zł/m2
Szczegóły ogłoszenia
- Kategoria: Mieszkania / Sprzedaż
- Powierzchnia:47 m2
- Liczba pokoi:2 pokoje
- Zabudowa:Inne
- Tech. budowy:Wielka Płyta
- Piętro :2 piętro
- Liczba pięter:Wieżowiec
- Rynek:Wtórny
- Rok budowy:1978
- Sprzedaż:Pośrednik
- Cena: 375 000 zł / 7979 zł/m2
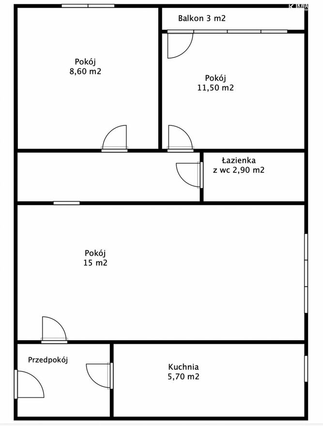
Opis oferty
Na sprzedaż 3-pokojowe mieszkanie o powierzchni 47 m2, znajdujące się na 2 piętrze w bloku z windą na os. Tatary.Teren wokół budynku zagospodarowany i oświetlony, posiada sporo zieleni.
Bardzo dobre połączenie komunikacyjne.
Na powierzchni 47 m2 znajduję się:
- Pokój z wyjściem na balkon - 11,50 m2
- Pokój - 15 m2
- Pokój - 8,6 m2
- Kuchnia - 5,70 m2
- Łazienka z wc - 2,90 m2
- Przedpokój
Czynsz w wysokości 550 zł/1os.
OGRZEWANIE I WODA Z SIECI MIEJSKIEJ !
Do mieszkania przynależy piwnica o powierzchni 3,5 m2
W pobliżu znajduje się WSEI oraz się centrum handlowe przy ul. Turystycznej, szkoła, przedszkole, apteki, sklepy spożywcze, Stokrotka.
Bezpośrednio przy bloku położony jest ogólnodostępny parking.
JEŻELI SZUKASZ FINANSOWANIA TEGO MIESZKANIA, WSPÓŁPRACUJĘ ZE SKUTECZNYM DORADCĄ KREDYTOWYM,
USŁUGA KREDYTOWA JEST BEZPŁATNA.
Zapraszam na prezentacje
Remigiusz Baran
514 - pokaż numer telefonu -
:: Oferta wysłana z programu mediaRent (media-rent.eu) ::
Numer oferty: 5277/BNK/MS
Powiadom o podobnych ogłoszeniach
Lokalizacja: Lublin
Kategoria: Nieruchomości » Mieszkania » Sprzedaż
Cena: od 319000 zł do 431500 zł Powierzchnia : od 40 m2 do 54 m2
Chcę otrzymywać powiadomienia o nowych ofertach
Remigiusz Baran
Konto firmowe
Na Lento.pl od 12 gru 2024
Odpowiada szybko
Strona użytkownika
- Wypromuj ogłoszenie
- Zgłoś naruszenie
- Drukuj ulotkę
- Edytuj/usuń ogłoszenie
- Udostępnij ogłoszenie
- Dodaj na Facebook



















