Mieszkanie Lublin Czechów, Czechów
Lublin Pokaż na mapie ›
Odświeżone: Środa, 04 Marzec, 2026 09:55
605 643 zł
10815 zł/m2
Szczegóły ogłoszenia
- Kategoria: Mieszkania / Sprzedaż
- Powierzchnia:56 m2
- Liczba pokoi:2 pokoje
- Zabudowa:Blok
- Tech. budowy:Pustak
- Piętro :Parter
- Liczba pięter:Wieżowiec
- Rynek:Wtórny
- Rok budowy:2026
- Sprzedaż:Pośrednik
- Cena: 605 643 zł / 10815 zł/m2
Opis oferty
Atrakcyjne M-4 z dużą loggią Czechów LUBLIN.UWAGA! Bez prowizji i podatku PCC.
Nowoczesne apartamenty blisko centrum miasta. Idealne miejsce do życia w mieście.
Zapraszamy do zapoznania się z wyjątkową ofertą nowoczesnych apartamentów, znajdujących się w prestiżowej inwestycji położonej zaledwie 3,3 km od centrum miasta. Inwestycja łączy wygodę życia blisko miejskiej infrastruktury z urokami zieleni i natury - zaplanowana rewitalizacja parku miejskiego o powierzchni ponad 1 ha to gwarancja relaksu na co dzień.
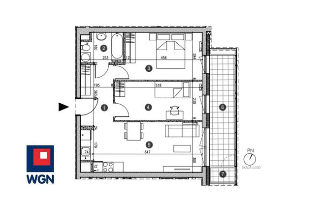
Mieszkanie na parterze 56,13 m2:
- salon z aneksem kuchennym 19,86 m2
- sypialnia 13,28 m2
- sypialnia 11,69 m
- łazienka 4,05 m2
- korytarz 7,21 m2
- loggia 9,95 m2
- schowek 1,30 m2
Oddanie do użytku - II kwartał 2026r.
Charakterystyka inwestycji:
- Lokalizacja: Blisko centrum miasta, w otoczeniu punktów usługowych, sklepów, galerii handlowych, przedszkoli, szkół podstawowych oraz placówek medycznych. Doskonała komunikacja, najbliższy przystanek autobusowy zaledwie 400 m od osiedla.
- Udogodnienia: W inwestycji znajdziesz takie udogodnienia jak winda, stacje ładowania samochodów elektrycznych, plac zabaw, siłownię plenerową oraz zielone tarasy na dachu.
Całość zaprojektowano z wykorzystaniem ekologicznych materiałów, podnoszących komfort i standard wykończenia.
- Przynależności: Do każdego mieszkania przynależy balkon, ogródek lub taras, co pozwala cieszyć się przestrzenią również na świeżym powietrzu.
- Garaże: Dla wygody mieszkańców powstanie dwukondygnacyjny garaż podziemny.
Inwestycja obejmuje 246 apartamentów realizowanych w dwóch etapach, które spełnią oczekiwania nawet najbardziej wymagających klientów. To miejsce łączy nowoczesny design, troskę o środowisko i wygodę codziennego życia.
Jeśli szukasz komfortowego mieszkania w rozsądnej cenie i ponadprzeciętnym standardzie to jest właśnie idealna oferta dla Ciebie.
Wszelkie informacje dotyczące oferty mieszkań przesyłamy Państwu na wskazany adres e-mail po zgłoszeniu telefonicznym lub e-mailowym.
Ponadto posiadamy szeroki wybór mieszkań w różnych lokalizacjach Lublina w nowych inwestycjach deweloperskich.
Napisz lub zadzwoń a przedstawię Ci ofertę dopasowaną do Twoich oczekiwań.
Informacje o nieruchomości zostały sporządzone na podstawie oświadczeń i nie są ofertą w rozumieniu przepisów prawa mają wyłącznie charakter informacyjny i mogą podlegać aktualizacji. Zalecamy ich osobistą weryfikację - https://immobilia.com.pl/nowy-czechow/.
Wszelkie prawa zastrzeżone. Teksty, rysunki, zdjęcia oraz inne informacje opublikowane na niniejszych stronach podlegają prawom autorskim WGN Nieruchomości w Lublinie. Wszelkie kopiowanie, dystrybucja, elektroniczne przetwarzanie oraz przesyłanie zawartości bez zezwolenia są zabronione.
WGN zapewnia rynkowe ceny, bezpieczeństwo korzystnej transakcji, doradztwo kredytowe oraz pomoc notariusza. Wyróżniamy się pełnym zaangażowaniem, ekspercką wiedzą i najwyższym poziomem usług opartych na ponad 30-letnim doświadczeniu na rynku nieruchomości w Polsce. Stosujemy System Jakości ZJ WGN oraz Kodeks Etyki Zawodowej Polskiej Federacji Rynku Nieruchomości.
Dzwoniąc pytaj o numer oferty 193 biura 88 z systemu inetonline.pl
Numer oferty: 193-88
Sprawdź zainteresowanie tym ogłoszeniem
Wyświetlenia
Data dodania
Ostatnio widziany
Obserwujących
Wysłane zapytania
Odsłony telefonu
Powiadom o podobnych ogłoszeniach
Lokalizacja: Lublin
Kategoria: Nieruchomości » Mieszkania » Sprzedaż
Cena: od 515000 zł do 696500 zł Powierzchnia : od 48 m2 do 64 m2
Chcę otrzymywać powiadomienia o nowych ofertach

Konto firmowe
Na Lento.pl od 05 mar 2024
Odpowiada szybko
Strona użytkownika
- Wypromuj ogłoszenie
- Zgłoś naruszenie
- Drukuj ulotkę
- Edytuj/usuń ogłoszenie
- Udostępnij ogłoszenie
- Dodaj na Facebook









