Mieszkanie Lublin Czechów,
Lublin Pokaż na mapie ›
Dodane: Wtorek, 25 Listopad, 2025 14:58
604 100 zł
10068 zł/m2
Szczegóły ogłoszenia
- Kategoria: Mieszkania / Sprzedaż
- Powierzchnia:60 m2
- Liczba pokoi:4 pokoje
- Zabudowa:Blok
- Piętro :5 piętro
- Liczba pięter:Wieżowiec
- Rynek:Pierwotny
- Rok budowy:2026
- Sprzedaż:Pośrednik
- Cena: 604 100 zł / 10068 zł/m2
Opis oferty
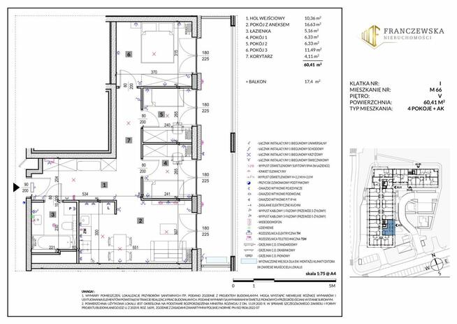
Czteropokojowe mieszkanie o powierzchni 60,41 m2 na 4 piętrze w 7-piętrowym budynku na nowoczesnym osiedlu na Czechowie w Lublinie.To idealna propozycja dla osób szukających komfortowego mieszkania w spokojnej, zielonej okolicy z doskonałym dostępem do miejskiej infrastruktury.
OPIS MIESZKANIA:
Pokój dzienny z aneksem kuchennym o powierzchni 16,63 m² z wyjściem na przestronny balkon/taras o pow. 17,40 m2,
Pokój o powierzchni 6,33 m²,
Pokój p pow 6,33 m2
Pokój o powierzchni 11,49 m2
Łazienka 5,16 m²,
Przedpokój 4,11 m2
Hol 10,36 m²
DODATKOWE INFORMACJE:
Cena miejsca postojowego w garażu podziemnym: 40 000 zł
Cena komórki lokatorskiej: 3 500 zł/m²
MEDIA:
pełne uzbrojenie - prąd, woda, kanalizacja, światłowód, kotłownia własna dla budynku
TERMIN REALIZACJI:
IV kwartał 2026 r.
DODATKOWE INFORMACJE:
- nowoczesny design, wysoką jakość wykonania
- cichobieżne windy, podziemny garaż dwupoziomowy, komórki lokatorskie,
- panele fotowoltaiczne, stacja ładowania pojazdów elektrycznych,
- monitoring, wideodomofon, światłowód,
- plac zabaw, strefa rekreacji i rowerownia,
- przestronne balkony nawet do 27 m².
LOKALIZACJA:
W pobliżu znajdują się sklepy, szkoły i nowy park handlowy, a także przystanki autobusowe linii 17, 18, 42, 57 i 904, zapewniające szybki dojazd do centrum. Lokalizacja umożliwia również bardzo szybki wyjazd na obwodnicę Lublina, co czyni to miejsce wyjątkowo praktycznym dla osób pracujących w różnych częściach miasta.
Jeśli potrzebujesz pomocy eksperta w dobraniu finansowania zakupu nieruchomości, skontaktuj się z opiekunem oferty.
Ofertę przygotował i prezentuje:
Piotr Ryl: 604 - pokaż numer telefonu -
Licencjonowany pośrednik nieruchomości
Franczewska Nieruchomości
Zapraszam do kontaktu oraz na prezentację nieruchomości!
Treść niniejszego ogłoszenia nie stanowi oferty handlowej w rozumieniu Kodeksu Cywilnego, ale jest zaproszeniem do współpracy. Dokładamy wszelkich starań, aby każda z ofert była rzetelnie sprawdzona oraz aktualna. W ofercie nie są przedstawione koszty obsługi transakcji, która wykonywana jest w profesjonalny sposób i zapewnia Państwu pełne bezpieczeństwo. Więcej unikalnych ofert w podobnych kryteriach znajdą Państwo na naszej stronie.
Numer oferty: 866085
Powiadom o podobnych ogłoszeniach
Lokalizacja: Lublin
Kategoria: Nieruchomości » Mieszkania » Sprzedaż
Cena: od 513500 zł do 694500 zł Powierzchnia : od 51 m2 do 69 m2
Chcę otrzymywać powiadomienia o nowych ofertach
Piotr Ryl
Konto firmowe
Na Lento.pl od 10 kwi 2025
Strona użytkownika
- Wypromuj ogłoszenie
- Zgłoś naruszenie
- Drukuj ulotkę
- Edytuj/usuń ogłoszenie
- Udostępnij ogłoszenie
- Dodaj na Facebook









