Mieszkanie Lublin Centrum, Niecała
Lublin Pokaż na mapie ›
Odświeżone: Poniedziałek, 22 Grudzień, 2025 13:57
650 000 zł
13830 zł/m2
Szczegóły ogłoszenia
- Kategoria: Mieszkania / Sprzedaż
- Powierzchnia:47 m2
- Liczba pokoi:2 pokoje
- Zabudowa:Apartamentowiec
- Tech. budowy:Pustak
- Piętro :1 piętro
- Liczba pięter:4 piętra
- Rynek:Wtórny
- Rok budowy:2023
- Sprzedaż:Pośrednik
- Cena: 650 000 zł / 13830 zł/m2
Opis oferty
Nowe mieszkanie 47,62 m2 z aneksem lub oddzielną kuchnią, Centrum, ul. Niecała, LublinBEZ PROWIZJI! NAJLEPSZA LOKALIZACJA INWESTYCYJNA POD WYNAJEM W LUBLINIE!
WOLNE MIESZKANIE GOTOWE NA ZAKUP!
MOŻLIWOŚĆ OBEJRZENIA MIESZKANIA W GODZINACH PRACY LUB WIECZORNYCH!
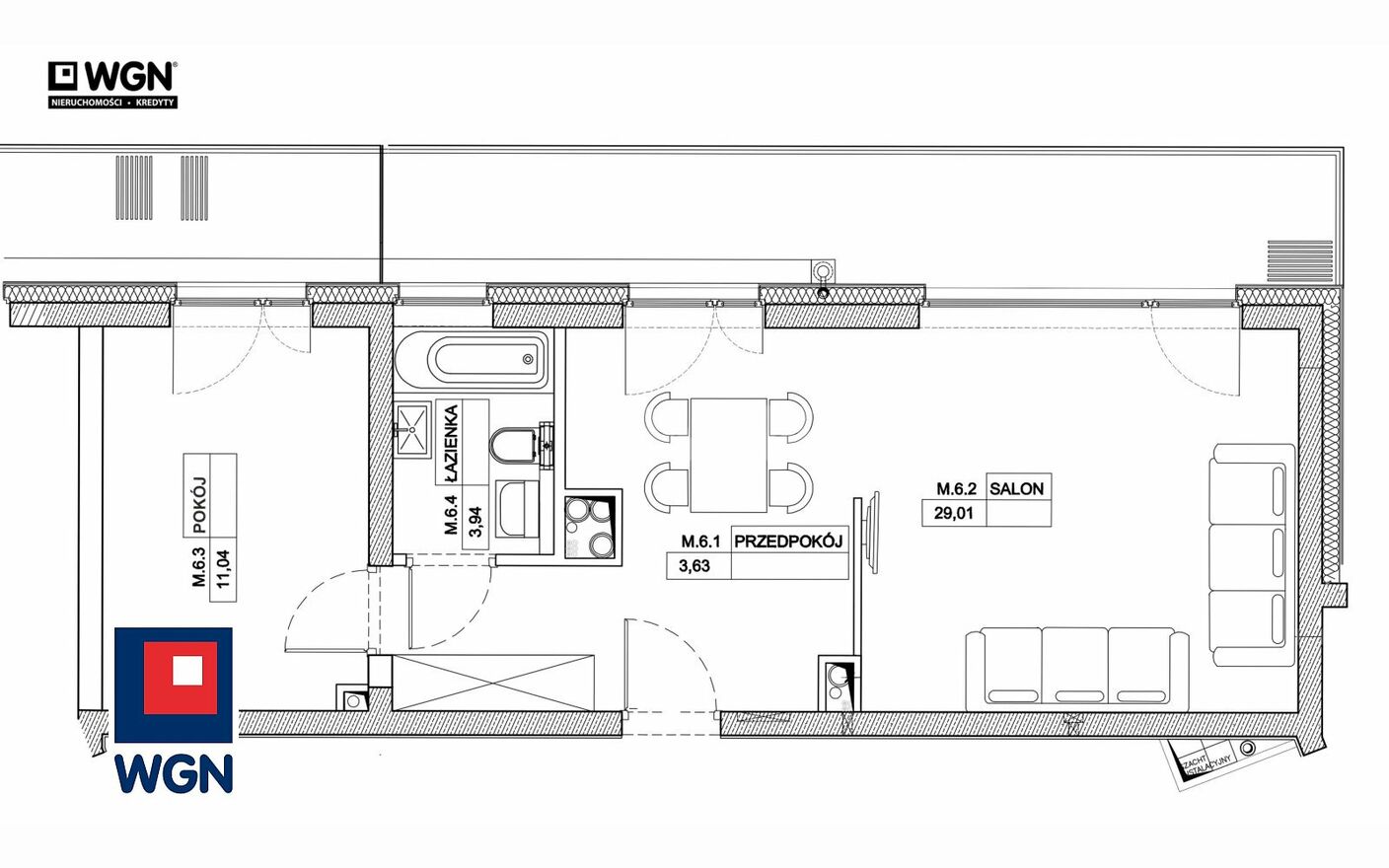
Mieszkanie o powierzchni niemalże 48m2 z dużym balkonem (ponad 16 m2). Mieszkanie składa się z salonu z aneksem kuchennym, sypialni, łazienki z WC. Sypialnia może także funkcjonować jako oddzielna widna kuchnia, ponieważ na etapie budowy zostały wyprowadzone media zarówno w salonie (pod aneks), jak i pokoju (pod oddzielną kuchnię), co daje bardzo duże możliwości wykończenia pod kątem własnych oczekiwań.
Mieszkanie usytuowane na 1-tym piętrze nowoczesnego budynku 3 piętrowego budynku z cichobieżną windą, wykończonego w wysokim standardzie!
Na mieszkanie składa się:
- salon (z możliwością aneksu kuchennego - wszystkie media) o pow. 29,01 m2
- pokój / kuchnia - (może być wykorzystany zarówno jako sypialnia jak i kuchnia - wszystkie media) o pow. 11,04 m2
- łazienka z oknem o pow. 3,94 m2
- przedpokój o pow. 3,63 m2
- balkon o pow. 16,21 m2
Prestiżowa lokalizacja w samym centrum Lublina, z nowoczesnym budynkiem wkomponowanym w historyczną architekturę ul. Niecałej, która zapewnia kameralną atmosferę.
Ścisłe centrum miasta Lublina zapewnia bliskość licznych atrakcji oraz komfort komunikacyjny. Nasze mieszkanie zlokalizowane jest w centrum Lublina, w bezpośrednim sąsiedztwie Uniwersyteckiego Szpitala Klinicznego, Placu Litewskiego, czy Deptaka. Lubelskie uczelnie jak Uniwersytet Medyczny, KUL, UMCS czy Samodzielny Publiczny Szpital Kliniczny Nr 4 przy ul. Dr K. Jaczewskiego 8 znajdują się w odległości zaledwie kilkuminutowego spaceru.
Lokalizacja budynku gwarantuje także dojście do Placu Zamkowego czy Starego Miasta w zaledwie kilka minut.
Atuty:
Bezpośrednie sąsiedztwo Uniwersyteckiego Szpitala Klinicznego, Lubelskiego Uniwersytetu Medycznego, Samodzielnego Publicznego Szpitala Klinicznego Nr 4 w Lublinie, Placu Zamkowego, Starego Miasta oraz Placu Litewskiego i Deptaka.
Cena PROMOCYJNA. Sprzedaż mieszkania tylko dla zainteresowanych zakupem jeszcze w grudniu (co najmniej umowa przedwstępna). Później sprzedaż nie będzie wchodziła w grę.
ZAPRASZAM NA PREZENTACJĘ.
Jeśli szukasz pewnej inwestycji, NIE PRZEGAP OKAZJI - to mieszkanie może być Twoje !
Naszym klientom również oferujemy:
- sprawdzenie zdolności kredytowej i zaproponowanie najkorzystniejszego kredytu;
- projektowanie wnętrz i wykończenie nieruchomości pod klucz.
Informacje o nieruchomości zostały sporządzone na podstawie oświadczeń i nie są ofertą w rozumieniu przepisów prawa. Mają wyłącznie charakter informacyjny i mogą podlegać aktualizacji. Zalecamy ich osobistą weryfikację.
Wszelkie prawa zastrzeżone. Teksty, rysunki, zdjęcia oraz inne informacje opublikowane na niniejszych stronach podlegają prawom autorskim WGN Nieruchomości w Lublinie. Wszelkie kopiowanie, dystrybucja, elektroniczne przetwarzanie oraz przesyłanie zawartości bez zezwolenia są zabronione.
WGN zapewnia rynkowe ceny, bezpieczeństwo korzystnej transakcji, doradztwo kredytowe oraz pomoc notariusza. Wyróżniamy się pełnym zaangażowaniem, ekspercką wiedzą i najwyższym poziomem usług opartych na ponad 30-letnim doświadczeniu na rynku nieruchomości w Polsce. Stosujemy System Jakości ZJ WGN oraz Kodeks Etyki Zawodowej Polskiej Federacji Rynku Nieruchomości.
Więcej ciekawych ofert znajdziesz na www.wgn.pl
Oferta specjalna biura WGN
Dzwoniąc pytaj o numer oferty 325 biura 88 z systemu inetonline.pl
Numer oferty: 325-88
Sprawdź zainteresowanie tym ogłoszeniem
Wyświetlenia
Data dodania
Ostatnio widziany
Obserwujących
Wysłane zapytania
Odsłony telefonu
Powiadom o podobnych ogłoszeniach
Lokalizacja: Lublin
Kategoria: Nieruchomości » Mieszkania » Sprzedaż
Cena: od 552500 zł do 747500 zł Powierzchnia : od 40 m2 do 54 m2
Chcę otrzymywać powiadomienia o nowych ofertach

Konto firmowe
Na Lento.pl od 05 mar 2024
Odpowiada szybko
Strona użytkownika
- Wypromuj ogłoszenie
- Zgłoś naruszenie
- Drukuj ulotkę
- Edytuj/usuń ogłoszenie
- Udostępnij ogłoszenie
- Dodaj na Facebook











