Dom z garażem i działką w cenie mieszkania
Lublin / Głusk Pokaż na mapie ›
Dodane: Piątek, 03 Październik, 2025 18:23
899 000 zł
6376 zł/m2
Szczegóły ogłoszenia
- Kategoria: Domy / Sprzedaż
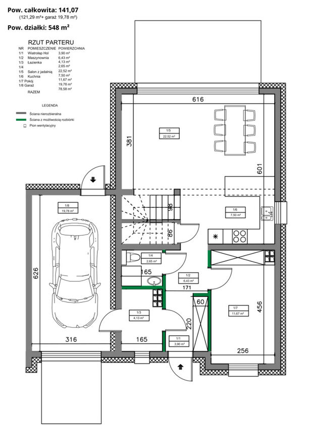
- Powierzchnia:141 m2
- Liczba pokoi:5 i więcej pokoi
- Pow. działki:542 m2
- Rynek:Pierwotny
- Rok budowy:2026
- Sprzedaż:Pośrednik
- Cena: 899 000 zł / 6376 zł/m2
Opis oferty
6 pokojowy dom z garażem i własną ogrodzoną działką.Kalinówka (Lublin) - dom z garażem 141m2 oraz własną działką
542m2. Przemyślane stworzenie projektu oraz wykonanie z materiałów
najlepszej jakości. Przyjdź i przekonaj się sam!
Budynek:
- 5 pokoi + salon z aneksem
- 121 m2 powierzchni użytkowej + garaż 19.78 m2
- wymurowany z bloczków betonowych
- gruntownie ocieplony
- dach dwuspadowy, z dachówki cementowej
- stan deweloperski z gotowymi instalacjami ( wody, szamba,
elektryczną wewnątrz, pompa ciepła Daikin, z ogrzewaniem
podłogowym w całym budynku, wentylacja grawitacyjna, wyprowadzenie
instalacji pod domofon i alarm, światłowodu, klimatyzacji, jak
również instalacja napędu bramy garażowej oraz zewnętrznej),
gotowe tynki na zewnątrz i wewnątrz
- okna PCV, 3-szybowe, okno tarasowe 4.9m
- taras 15 m2
- kostka wokół budynku
Pomieszczenia parter:
- salon z jadalnią 22,52m2
- kuchnia 7.5m2
- gabinet 11.67m2
- łazienka 2.65m2
- wiatrołap
- hall
- pomieszczenie gospodarcze
- garaż 19.78m2
Pomieszczenia piętro:
- sypialnia 11.35m2
- pokój 11.25m2
- pokój 11.26m2
- pokój 9.2m2
- łazienka 5.76m2
-pralnia 2.5m2
Działka:
- 542 m2
- ogrodzona z bramą napędową
Lokalizacja:
- Kalinówka
- Lublin
- przy bocznej drodze asfaltowej
- ruch tylko lokalny,
- spokój i cisza
- w okolicy szkoła, park handlowy, droga E 17
- szybki dojazd do centrum Lublina i Świdnika
Istnieje możliwość wprowadzenia zmian w projekcie.
Dostępny jest również dom z garażem dwustanowiskowym.
KUPUJĄCY ZWOLNIONY Z PODATKU 2% PCC - sprzedaż deweloperska
POMAGAM
SKUTECZNIE I BEZPŁATNIE W UZYSKAN U KREDYTU NA ZAKUP NIERUCHOMOŚCI
ORAZ W KOMPLEKSOWEJ OBSŁUDZE NOTARIALNEJ
Chętnie odpowiem na wszystkie pytania i zaprezentuję Ci
nieruchomość osobiście.
Ewelina Górniak
tel. 669 - pokaż numer telefonu -
e-mail: @
Sprawdź zainteresowanie tym ogłoszeniem
Wyświetlenia
Data dodania
Ostatnio widziany
Obserwujących
Wysłane zapytania
Odsłony telefonu
Powiadom o podobnych ogłoszeniach
Lokalizacja: Lublin
Kategoria: Nieruchomości » Domy » Sprzedaż
Cena: od 764000 zł do 1034000 zł Powierzchnia : od 120 m2 do 162 m2
Chcę otrzymywać powiadomienia o nowych ofertach
- Wypromuj ogłoszenie
- Zgłoś naruszenie
- Drukuj ulotkę
- Edytuj/usuń ogłoszenie
- Udostępnij ogłoszenie
- Dodaj na Facebook






























